Energy
Efficiency

. . . Designed with Flair ~ Crafted with Care . . .

Is A New Homebuilding Company Committed To Creating Distinctive, Energy Efficient Homes Through Renewable, Value-Added Building Techniques That Enhance The Well-Being Of Environmentally Conscious Homeowners While Preserving Vital Earth Resources For Future Generations.

Environmentally
Conscious

Healthy
Homes

Welcome To SolaRES Homes!

Imagine . . . a home created to capture the beneficial effects of the sun and preserve valuable energy resources every day.

Imagine . . . a home that creates and conserves useful free energy and considerably lowers your annual energy costs.

Imagine . . . a home meticulously crafted to your exact expectations, where just outside your personal, energy-efficient enclave, nature and the breathtaking Colorado landscapes await your personal and uninhibited, experiential enjoyment!

SolaRES HOMES . . . Which stands for SOLAR’. . . Residence, is an exciting, energy efficient, new home offering.

In designing and building homes that effortlessly focus on Your sustainable priorities, we partner with you to achieve better savings, better comfort, and better health . . . All in the security of a uniquely personalized living environment crafted and built with technologies at the leading edge of energy efficiency.

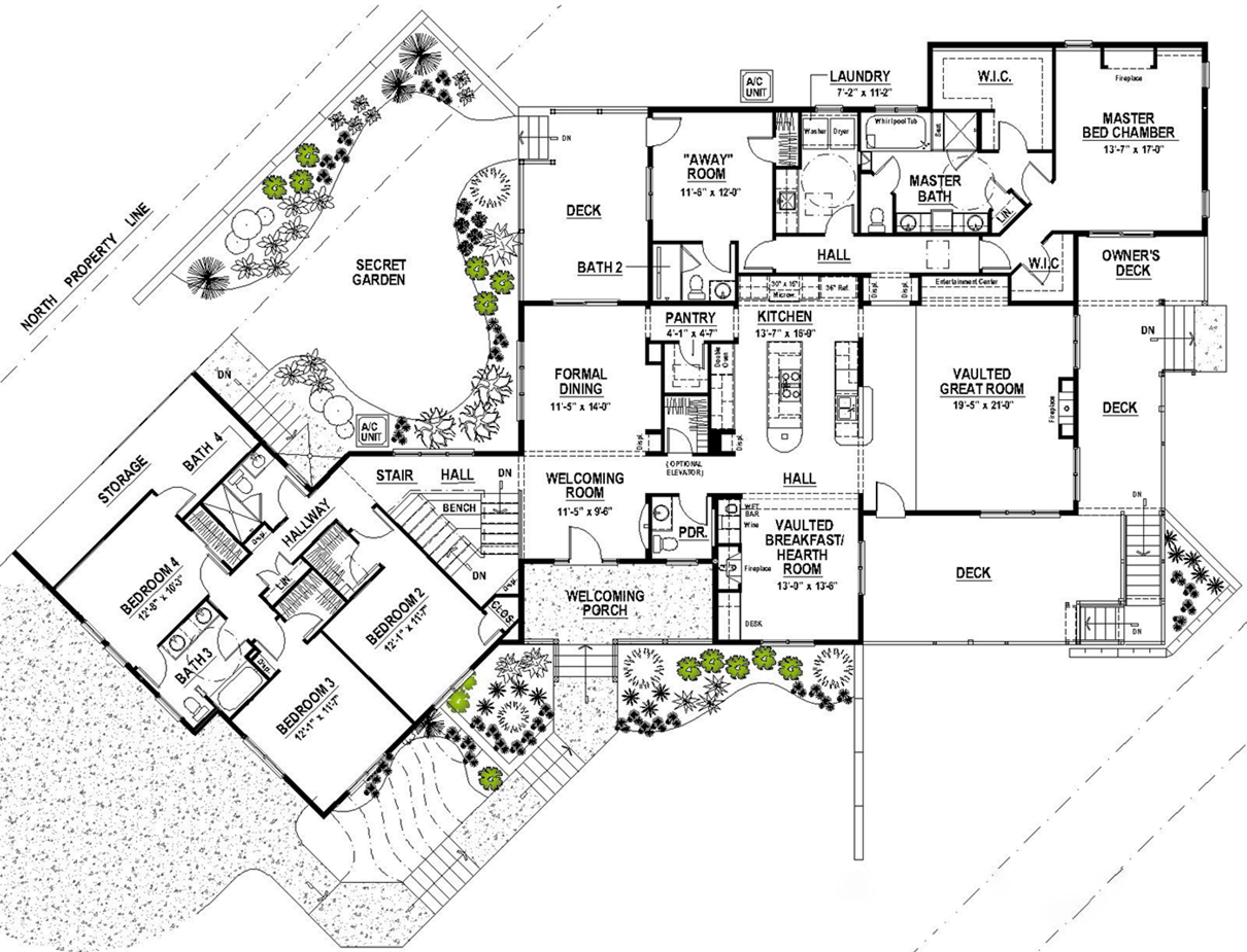
MAIN FLOOR LEVEL

THE SCIENCE OF SUSTAINABILITY, ENERGY EFFICIENCY and ENERGY SAVINGS

The KEY to Substantial Energy Savings is RETAINING the electric and natural gas energy you purchase for heating and cooling your home. By constructing a cost effective, highly energy efficient thermal envelope, this beneficial goal is achieved! And by combining significant energy producing technologies, such as passive solar heat gain, the home becomes a self contained, energy producing, energy saving
haven of comfort over the entire life of the home.

HOME DESIGN STRATEGIES FOR BUILDING ENERGY-EFFICIENT HOMES

These meticulously designed and crafted homes feature vibrant living areas strategically positioned to take advantage of the open, magnificent views of the amazing Colorado landscape just outside all primary living spaces. These extraordinary homes are created for maximum livability and enhanced with state of the art energy saving features that make these new homes personal sanctuaries
that rise above the rest!

Contact us

to learn more and Why this new energy efficient homestyle should be Your haven for “Energy Efficient Excellence”

Need more help?

CARLSON Design & Build, Inc.